Passa alla navigazione Passare al contenuto Passa al Footer

Nuovo Bilocale di ampia metratura – Consegna fine 2026

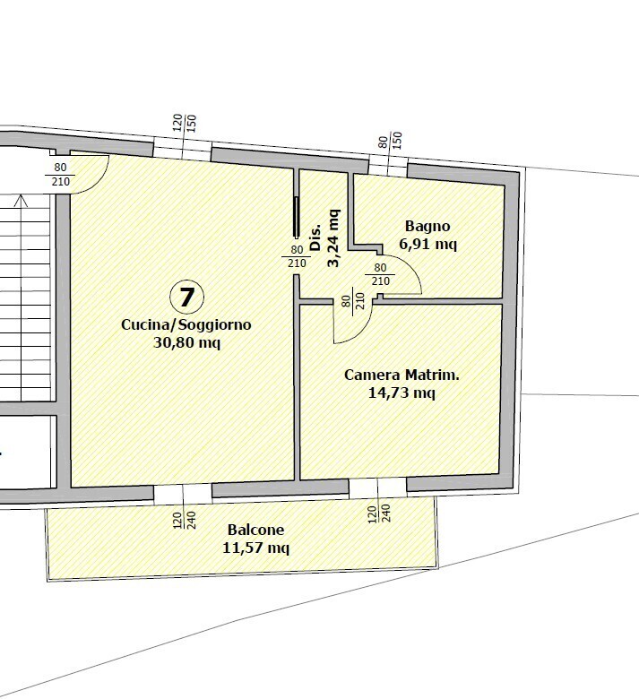
Num. imm.
IN251009
Tipo di immobile
Appartamento
Tipologia di commercializzazione
Vendita
Superficie commerciale
70,00 m²
Locali
2
Camere da letto
1
Bagni
1
Città
Castiglione delle stiviere
Piano
1
Prezzo dell'immobile
160.000,00 €
Balcone

Dettagli dell’immobile

Appartamento in vendita a Castiglione delle Stiviere, nella zona di Gozzolina, con vista urbana. Questa nuova costruzione, prevista per il 2026, offre un design moderno e personalizzabile secondo le preferenze dell'acquirente. Con una superficie abitabile di 55,00 m², l'unità è composta da 2 locali, tra cui 1 camera da letto e 1 bagno.

L'appartamento presenta un angolo cottura a vista, ideale per chi ama cucinare e socializzare nello stesso tempo. Inoltre, è dotato di un balcone, perfetto per un po' di relax all'aperto.

L'immobile è costruito con materiali di alta qualità, garantendo comfort e durabilità. Questa è un'opportunità eccellente per chi cerca una nuova residenza in una località strategica e in crescita come Castiglione delle Stiviere. Non perdere l'occasione di personalizzare la tua nuova casa!

– Bagno con finestra
– Doccia angolare
– Angolo cottura a vista
– Pavimento con possibilità di personalizzazioni
– Balcone
– 1 posto auto
– Garage/Box indipendente
– Parcheggio all’aperto
– Riscaldamento a pavimento
– Riscaldamento autonomo
– Riscaldamento elettrico
– Alimentazione riscaldamento elettrica
– Alimentazione riscaldamento fotovoltaico

Genere
Residenziale
Certificazione energetica
Attestato di prestazione energetica (APE)
Classe energetica
A2

– Situato a Castiglione delle Stiviere, un'incantevole cittadina italiana ricca di storia e cultura.
– A soli 3 km dal centro di Castiglione delle Stiviere, l'appartamento offre una posizione comoda per tutte le esigenze quotidiane.
– Ottimo accesso all'autostrada, situata a 12 km di distanza, ideale per chi necessita di viaggiare frequentemente.
– Perfettamente posizionato per le famiglie con bambini: asilo e scuola elementare si trovano a soli 100 metri.
– Scuola secondaria raggiungibile in soli 4 km, mentre il liceo si trova a 5 km, entrambi facilmente accessibili.
– Circondato da un ambiente tranquillo, che unisce la comodità dei servizi urbani alla serenità della vita di quartiere.

Altri immobili interessanti

Castiglione delle Stiviere

Quadrilocale al piano primo con terrazza

Num. imm.
IN25397
Tipo di immobile
Appartamento
Commercializzazione
Vendita
Locali
4
Sup. commerciale
150,00 m²

Castiglione delle Stiviere

Quadrilocale al piano primo con terrazza

Num. imm.
IN25584
Tipo di immobile
Appartamento
Commercializzazione
Vendita
Locali
4
Sup. commerciale
150,00 m²

Castiglione delle Stiviere

Trilocale al piano terra con giardino

Num. imm.
IN25585
Tipo di immobile
Appartamento
Commercializzazione
Vendita
Locali
3
Sup. commerciale
121,00 m²

Castiglione delle Stiviere

Ampio trilocale ottimo investimento

Num. imm.
IN25599
Tipo di immobile
Appartamento
Commercializzazione
Vendita
Locali
3
Sup. commerciale
107,00 m²

Carpenedolo

Num. imm.
IN25776
Tipo di immobile
Appartamento
Commercializzazione
Vendita
Locali
3
Sup. commerciale
100,00 m²

Castiglione delle Stiviere

Num. imm.
IN25824
Tipo di immobile
Attico
Commercializzazione
Vendita
Locali
4
Sup. commerciale
180,00 m²

    La tua richiesta sull'immobile “Nuovo Bilocale di ampia metratura – Consegna fine 2026” (IN251009)

    * Campi obbligatori

    Lascia la tua richiesta