Passa alla navigazione Passare al contenuto Passa al Footer

Trilocale al piano primo con terrazzo e garage doppio

Num. imm.
IN251004
Tipo di immobile
Appartamento
Tipologia di commercializzazione
Vendita
Superficie commerciale
145,00 m²
Locali
3
Camere da letto
2
Bagni
1
Terrazze
1
Città
Castiglione delle Stiviere
Piano
1
Prezzo dell'immobile
270.000,00 €
Balcone
Terrazza

Dettagli dell’immobile

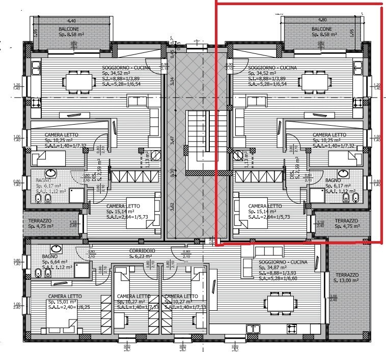
In vendita a Castiglione delle Stiviere, questo appartamento moderno ed elegante è una straordinaria opportunità per chi cerca una nuova casa in costruzione. Collocato al primo piano di un edificio di 6 unità, l'immobile offre una splendida vista urbana e comprende una generosa superficie abitabile di 70 m², sviluppata su un unico livello.

L'appartamento è composto da tre locali, incluso un ampio soggiorno con cucina a vista con doppia esposizione ed accesso su terrazzo. Le due camere da letto offrono spazio e comfort, mentre il bagno è completato con finiture di alta qualità.

Gli interni possono essere personalizzati secondo i gusti del cliente, con pavimenti in parquet laminato e gres porcellanato che garantiscono eleganza e praticità. L'accesso alla luce naturale è ottimizzato grazie all'orientamento a est, sud e ovest, che illumina perfettamente gli ambienti durante tutta la giornata.

Il valore aggiunto di questo appartamento è rappresentato dalla presenza di una terrazza, ideale per momenti di relax o per cene all'aperto nelle serate estive.

Questa proprietà rappresenta un eccellente equilibrio tra design moderno, comfort e funzionalità, rendendola la scelta perfetta per chi desidera vivere in un contesto vivace e dinamico senza rinunciare a un ambiente accogliente e personalizzabile. Contattaci per maggiori informazioni o per prenotare una visita.

Questo splendido appartamento è caratterizzato da alta efficienza energetica, dotato di isolamento con cappotto da 14 cm, serramenti in legno con triplo vetro, impianto fotovoltaico esclusivo. La cucina a vista si integra perfettamente con lo spazio abitativo, creando un ambiente accogliente e armonioso. I pavimenti vantano una combinazione di parquet laminato e gres porcellanato, con la possibilità di personalizzazioni per adattarsi ai tuoi gusti personali; bagno moderno, dotato di finestra, doccia e sanitari sospesi, offrendo funzionalità e stile.

L'abitazione è completata da un bellissimo terrazzo, perfetto per godere di momenti di relax all'aperto. Il riscaldamento a pavimento, autonomo e alimentato tramite una combinazione efficiente di pompa di calore e fotovoltaico, garantisce comfort e sostenibilità energetica durante tutto l'anno,

Genere
Residenziale
Certificazione energetica
Attestato di prestazione energetica (APE)
Classe energetica
A4

Altri immobili interessanti

Castiglione delle Stiviere

Quadrilocale al piano primo con terrazza

Num. imm.
IN25397
Tipo di immobile
Appartamento
Commercializzazione
Vendita
Locali
4
Sup. commerciale
150,00 m²

Castiglione delle Stiviere

Quadrilocale al piano primo con terrazza

Num. imm.
IN25584
Tipo di immobile
Appartamento
Commercializzazione
Vendita
Locali
4
Sup. commerciale
150,00 m²

Castiglione delle Stiviere

Trilocale al piano terra con giardino

Num. imm.
IN25585
Tipo di immobile
Appartamento
Commercializzazione
Vendita
Locali
3
Sup. commerciale
121,00 m²

Castiglione delle Stiviere

Ampio trilocale ottimo investimento

Num. imm.
IN25599
Tipo di immobile
Appartamento
Commercializzazione
Vendita
Locali
3
Sup. commerciale
107,00 m²

Carpenedolo

Num. imm.
IN25776
Tipo di immobile
Appartamento
Commercializzazione
Vendita
Locali
3
Sup. commerciale
100,00 m²

Castiglione delle Stiviere

Num. imm.
IN25824
Tipo di immobile
Attico
Commercializzazione
Vendita
Locali
4
Sup. commerciale
180,00 m²

    La tua richiesta sull'immobile “Trilocale al piano primo con terrazzo e garage doppio” (IN251004)

    * Campi obbligatori

    Lascia la tua richiesta