Passa alla navigazione Passare al contenuto Passa al Footer

Villa bifamiliare in corso di costruzione

Num. imm.
IN25977
Tipo di immobile
Villetta a schiera
Tipologia di commercializzazione
Vendita
Superficie commerciale
240,00 m²
Locali
6
Camere da letto
3
Bagni
4
Terrazze
1
Città
Solferino
Prezzo dell'immobile
360.000,00 €
Balcone
Terrazza

Dettagli dell’immobile

Solferino solo da ultimare internamente , proponiamo spaziosa villetta in bifamiliare con giardino
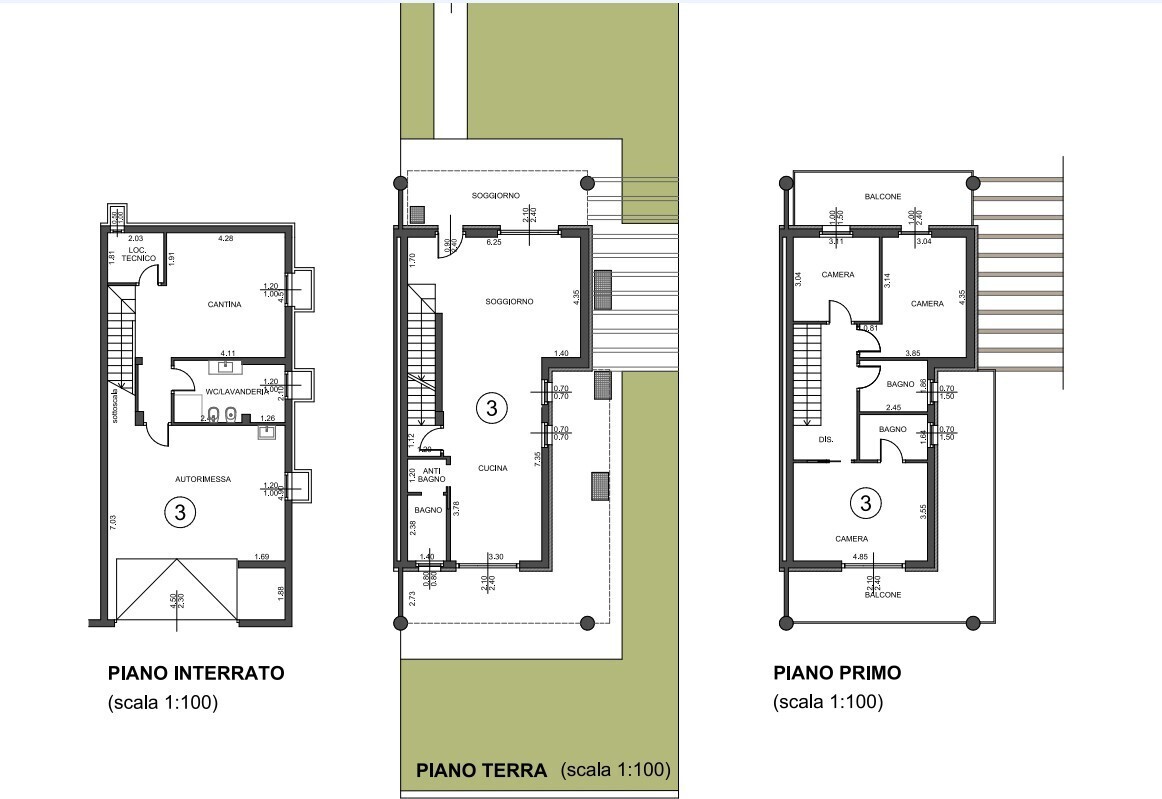
Questa nuova costruzione, distribuita su tre livelli, offre una superficie abitabile di 180,00 m² e incanta con una splendida vista sulla Rocca di Solferino e sulle colline circostanti
Al piano terra, sarete accolti da un luminoso soggiorno con cucina open space, che si apre su un ampio porticato, perfetto per momenti di relax all'aperto. Completa il piano un pratico bagno di servizio. Salendo la pregiata scala in marmo, si accede alla zona notte, composta da tre camere da letto. La camera matrimoniale è dotata di un elegante bagno padronale, mentre un secondo bagno serve le altre due camere. La zona notte è impreziosita da due magnifiche terrazze con vista sulla storica torre di Solferino.
Il piano interrato amplia ulteriormente lo spazio abitativo con una taverna attrezzata, un bagno-lavanderia, un locale tecnico e un garage in grado di ospitare due auto, completo di porta sezionale motorizzata.

Questo immobile è stato progettato con una meticolosa attenzione al comfort e all'efficienza energetica. Tra le caratteristiche spiccano il cappotto termico, il riscaldamento a pavimento, serramenti in PVC con triplo vetro, predisposizione per impianto d'allarme e climatizzazione, pavimenti in gres di alta qualità e un impianto fotovoltaico esclusivo.

Non perdete l'occasione di vivere in un'abitazione che combina modernità, eleganza e una posizione geografica privilegiata. Contattateci per maggiori dettagli o per organizzare una visita.

Scopri una proprietà eccezionale che offre una gamma di comfort pensati per il benessere quotidiano. Il bagno è dotato di finestra e di una doccia moderna, garantendo un ambiente luminoso e funzionale. La cucina è perfetta sia per chi ama cucinare che per chi desidera uno spazio conviviale, con una soluzione aperta e abitabile.

Inoltre, troverete un comodo ripostiglio per organizzare al meglio gli spazi. I pavimenti in gres porcellanato aggiungono un tocco di eleganza e sono facili da mantenere.

Goditi momenti di relax sulla terrazza e sul balcone o immergiti nella natura grazie a un ampio giardino di 150,00 m². Per le vostre esigenze di parcheggio, sono disponibili due posti auto con un garage/box indipendente.

La cantina parzialmente disponibile offre spazio extra per riporre gli oggetti più voluminosi. L'impianto di riscaldamento a pavimento, combinato con un sistema autonomo alimentato da una pompa di calore e da un impianto fotovoltaico, assicura comfort ottimale e sostenibilità energetica. Perfetta per chi cerca un'abitazione moderna con un occhio di riguardo per l'ambiente.

Genere
Residenziale
Certificazione energetica
Attestato di prestazione energetica (APE)
Classe energetica
A3

Altri immobili interessanti

Castiglione delle Stiviere

VILLA SINGOLA DA PERSONALIZZARE

Num. imm.
598858
Tipo di immobile
Villa
Commercializzazione
Vendita
Locali
5
Sup. commerciale
225,00 m²

Solferino

Splendida Villa bifamiliare immersa nelle colline moreniche

Num. imm.
IN25255
Tipo di immobile
Villa Bifamiliare
Commercializzazione
Vendita
Locali
10
Sup. commerciale
420,00 m²

Castiglione delle Stiviere

Villetta angolare di destra

Num. imm.
IN25281_2
Tipo di immobile
Villetta a schiera
Commercializzazione
Vendita
Locali
5
Sup. commerciale
180,00 m²

Castiglione delle Stiviere

Villa a schiera con giardino esclusivo, 3 camere da letto, 2 bagni e garage

Num. imm.
IN25284
Tipo di immobile
Villetta a schiera
Commercializzazione
Vendita
Locali
6
Sup. commerciale
200,00 m²

Castiglione delle stiviere

VILLA BIFAMIGLIARE SIGNORILE CON VISTA PANORAMICA

Num. imm.
IN25371
Tipo di immobile
Villa Bifamiliare
Commercializzazione
Vendita
Locali
7
Sup. commerciale
283,00 m²

Castiglione delle Stiviere

Villa con 5 locali guardino doppi servizi

Num. imm.
IN25405
Tipo di immobile
Villa
Commercializzazione
Vendita
Locali
5
Sup. commerciale
260,00 m²

    La tua richiesta sull'immobile “Villa bifamiliare in corso di costruzione” (IN25977)

    * Campi obbligatori

    Lascia la tua richiesta